自力式控制阀又称直接作用控制阀,是一大类不需要额外能源驱动的控制阀。它是一类把测量、控制和执行功能合为一体,利用被控对象本身能量带动其动作的控制阀。英文为self-operated regulator,因此,一般称为自力式调节阀。以下介绍三轴常用的 自力式压差调节阀、自力式流量调节阀和自力式温度调节阀。

自力式压差调节阀

自力式压差调节阀

自力式压差调节阀原理图

图1是自力式压差调节阀的原理图。它由两个气动薄膜执行机构串联连接,分别引入阀门前后流体的压力。产生的两个推力之差和由设定弹簧产生的力及控制阀两端压力降产生的力相平衡。调节设定弹簧的圈数可改变其刚度,从而改变其压差的设定值。当取压点的信号来自同一管道上安装的孔板两侧时,可用于控制流量。

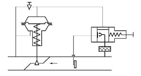
自力式流量调节阀

自力式流量调节阀

自力式流量调节阀原理图

图2是自力式流量调节阀的原理图。与带指挥器的自力式压力调节阀类似,它采用指挥器,但指挥器内的膜片经杠杆直接与测量流量的靶板连接,用于将流量信号转换为推力。根据流体力学原理,所产生的推力与流体密度、黏度和靶板几何形状等有关。当流体特性确定,靶板几何形状确定后,其推力与靶板面积成正比,与流体的流量平方成正比。

当流量增加时,作用在靶板的推力增加,经杠杆传递,使指挥器内膜片受力增加,带动挡板,靠近喷嘴,流体经过滤器引入指挥器的压力因挡板靠近喷嘴,使其输出压力下降,即到气动薄膜执行机构膜室的压力下降,阀杆上移,反体阀芯上移使流通面积减小。直到作用到指挥器的推力与指挥器弹簧设定的力平衡。针阀用于调整放大倍数。

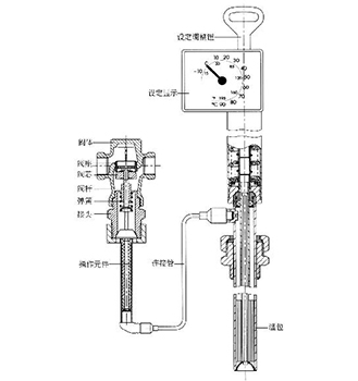
自力式温度调节阀

自力式温度调节阀

自力式温度调节阀原理图

自力式温度控制阀是用温包检测温度信号,转换为相应压力变化。并将该压力引入气动活塞执行机构的膜室。图3是自力式温度调节阀结构图。

设定调整纽用于设置温度。当被测温度改变时,温包内的液体膨胀,使其相应的压力变化,该压力被引到波纹管连接的活塞操作元件,使操作元件带动阀杆移动,并使阀芯位置改变,从而调节流通面积。根据选用的正体阀或反体阀的不同,可用于温度升高时关小或开大阀门。

温包内的压力间接反映温度,因此,可用其压力信号显示其温度值。

上海江控阀门生产的自力式压差调节阀、自力式流量调节阀和自力式温度调节阀广泛应用于蒸汽、水、压缩气体和油品等场合,用于实现对阀后的压力调整、流量调整或温度调整。在化工、工业用水、生活用水、浴池、天然气等场合中得到广泛的认可。

自力式调节阀

自力式调节阀


相关推荐/RECOMMEND