上海江控阀门有限公司生产的Z641H、Z641Y、Z641F 气动法兰闸阀,具有气动执行机构(双层气缸,并带有缓冲机构)和手动及其保护机构(手动和可自锁的气动-手动转换装置)的低支架明杆闸阀。该阀由于采用双层气缸结构,其与单气缸式气动闸阀相比,提升力增大了一倍。这就从根本上解决了单气缸气动闸阀的某些阀体内楔死而打不开的弊病。而且,由于该阀具备缓冲机构,能有效地减速轻了关闭阀门时,由于活塞下行冲击而造成的阀板车密封面和阀体密封面的磨损,同时,也能避免闸板卡死的现象。为了配合用户实现操作自动化,本公司除供应本系列产品之外,还可单独提供包括支架在内的气缸体,帮助用户对已有的种类繁多的手动闸阀进行改造,将双缸气动执行机构部分安装在手动闸阀的阀体大盖上,即可构成双缸式气动-手动两用闸阀。
适用场景:
Z641H、Z641Y、Z641F 气动法兰闸阀应用于石油、化工、冶金、电力、海运等部门作为输送气体、液体介质的管道。
| 气动法兰闸阀(不锈钢法兰连接、带电磁阀、气源三联件、阀位反馈) |
| 阀体材质 | 型号 |
|---|---|
| 碳钢 | Z641H、Z641Y、Z641F-16C,Z641H、Z641Y、Z641F-25C |
| 不锈钢 | Z641H、Z641Y、Z641F-16P,Z641H、Z641Y、Z641F-25P |
| 型号 | 材料 | ||||
|---|---|---|---|---|---|
| 阀体、阀盖、闸板 | 阀座、闸板密封面 | 阀杆 | 填料 | 气缸 | |
| Z641H-16C | 碳素钢 | 堆焊铁其合金 | 铬不锈钢 | 石棉石墨/柔性石墨 | 无缝钢管 |
| Z641H-25 | |||||
| Z641H-40 | |||||
| Z641H-63 | |||||
| Z641Y-16C | |||||
| Z641Y-25 | 堆焊硬质合金 | ||||
| Z641F-16C | 阀板堆焊铁基合金 阀座镶聚四氟乙烯 | ||||
| Z641F-25 | |||||
| 型号 | PN | 工作压力/MPa | 适用温度/℃ | 适用介质 |
|---|---|---|---|---|
| Z641H-16C | 16 | 1.6 | ≤350 | 水、蒸汽、油品等无腐蚀性介质 |
| Z641H-25 | 25 | 2.5 | ||
| Z641H-40 | 40 | 4.0 | ||
| Z641H-63 | 63 | 6.3 | ||
| Z641Y-16C | 16 | 16 | ||
| Z641Y-25 | 25 | 2.5 | ||
| Z641F-16C | 16 | 1.6 | ≤150 | |
| Z641F-25 | 25 | 2.5 |
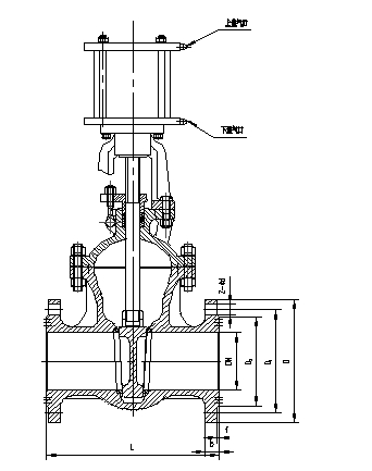
![]() |
| DN | D | D1 | D2 | b | f | L | Z-d |
|---|---|---|---|---|---|---|---|
| 50 | 160 | 125 | 100 | 20 | 3 | 250 | 4×18 |
| 80 | 195 | 160 | 135 | 22 | 3 | 280 | 8×18 |
| 100 | 230 | 190 | 160 | 24 | 3 | 300 | 8×23 |
| 150 | 300 | 250 | 218 | 30 | 3 | 350 | 8×25 |
| 200 | 360 | 310 | 278 | 34 | 3 | 350 | 12×25 |
| 250 | 425 | 370 | 332 | 36 | 3 | 400 | 12×30 |
| 300 | 485 | 430 | 395 | 40 | 4 | 500 | 16×30 |
| 350 | 550 | 490 | 448 | 44 | 4 | 550 | 16×34 |
| 400 | 610 | 550 | 495 | 48 | 4 | 600 | 16×34 |
| 450 | 660 | 600 | 555 | 50 | 4 | 650 | 20×34 |
| 500 | 730 | 660 | 610 | 52 | 4 | 700 | 20×41 |
| 600 | 840 | 770 | 718 | 56 | 5 | 800 | 20×34 |
1.安装前须检查阀门腔内和密封面等部位,不允许有污物或砂粒附着;本类阀门在管道中一般应当水平安装。
2.各连接部位螺栓,要求均匀拧紧;
3.检查填料部位要求压紧,既保证填料的密封性,也要保证闸板开启灵活;
4.用户在安装阀门前,必须校对阀门型号,连接尺寸及注意介质流向,保证与阀门要求一致性;
5.用户在安装阀门时,必须预留阀门驱动的必要空间;
6.驱动装置的接线须按线路图进行;
7.气动刀型闸阀必须定期保养,不得随意碰撞及挤压,以免影响密封。
注:由于产品改进技术创新参数可能有一定变化,公司不另行通知,请咨询公司技术部门索取新数据。
气动法兰闸阀链接:https://jakon.cn/list_14/199.html