一、呼吸阀 产品概述
上海江控阀门有限公司生产的呼吸阀又称为全天候呼吸阀,呼吸阀为阀座相互重叠的重力式结构。其特点是阀盘与阀座之间采用带空气垫的软接触,气密性好,不易结霜冻结,适宜于寒冷的地区使用。
呼吸阀用于油及液体罐上,来排除罐内的正压和负压气体,使罐内液体进出方便.如罐体上不装呼吸阀罐内的液体进出有一定的障碍,很可能出现罐体变型和振动,该阀设计合理,结构简单,使用方便,是储罐的必备产品。
二、呼吸阀 产品图片
三、呼吸阀 技术参数(可定制呼吸压力)
| A级正压 | 355Pa (36毫米水柱) |
|---|
| 负压 | 295Pa (30毫米水柱) |
| B级正压 | 980Pa (100毫米水柱) |
| 负压 | 295Pa (30毫米水柱) |
| C级正压 | 1765Pa (180毫米水柱) |
| 负压 | 295Pa (30毫米水柱 |
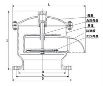
四、呼吸阀 结构图
五、呼吸阀 连接尺寸
| 公称通径 (mm) | 安装尺寸(mm) |
|---|
| D | K | L | H | n×φ |
|---|
| DN25 | 115 | 85 | 160 | 165 | 4×14 |
| DN32 | 135 | 100 | 180 | 185 | 4×18 |
| DN40 | 145 | 110 | 190 | 190 | 4×18 |
| DN50 | 160 | 125 | 220 | 220 | 4×18 |
| DN80 | 195 | 160 | 270 | 260 | 8×18 |
| DN100 | 215 | 180 | 310 | 280 | 8×18 |
| DN150 | 280 | 240 | 380 | 330 | 8×22 |
| DN200 | 335 | 295 | 450 | 380 | 12×22 |
| DN250 | 395 | 350 | 520 | 420 | 12×22 |
| DN400 | 565 | 515 | 670 | 520 | 16×26 |
注:由于产品改进技术创新参数可能有一定变化,公司不另行通知,请咨询公司技术部门索取新数据。
下载:上海江控阀门有限公司-产品样本-呼吸阀.PDF
呼吸阀链接:https://jakon.cn/list_12/223.html