上海江控阀门有限公司生产的气动衬氟法兰蝶阀(亦称耐腐蚀气动蝶阀)是由气动活塞式执行器及四氟密封蝶阀组成。适用于温度≤180℃,有腐蚀性或洁净度有一定要求工况,气动衬氟蝶阀是在过流部件、阀体、蝶板、阀杆上采用衬里技术衬里较厚的高分子材料,防腐蚀性能优良,可适用于任何浓度的酸、碱、盐及氧化剂、还原剂、有机溶剂等介质,气动衬氟蝶阀是化工、石油、医药、食品、钢铁治炼、造纸、水电等系统的气体、液体、半流体的管路和容器上作截流和调节设备使用的理想产品。全衬聚四氟乙烯(F4)和聚全氟乙丙烯(F46)氟塑料衬里蝶阀,具有耐腐蚀、无泄漏、寿命长等优点。耐腐蚀气动蝶阀适用于浓硫酸、盐酸、硝酸、氢氟酸、王水、各种有机酸、强酸、氧化性介质或高温烯硫酸、高温浓醋酸、酸碱交替及多种有机溶剂和其它强腐蚀性介质。
特点:
1.体积小、重量轻、操作轻巧、便于安装、维修。
2、密封性能优良可靠、零泄漏,使用寿命长。
3、流量特性趋于直线,调节性能优。
4、结构简单,开关迅速,90°旋转启闭。
5、可代替闸阀、截止阀、旋塞阀、胶管阀及隔膜阀等各种阀门的使用。
6、可根据用户要求配置气动、电动装置,满足遥控和程控的需要。
7、衬氟蝶阀通过合理选材和采用特殊工艺结构。更换零件衬里材质可适用于各种介质。
8.广泛用于化工、农药、造纸、水处理、印染等强耐腐蚀开关或调节场合。若口径较大的耐腐蚀场合,建议选择耐腐蚀蝶阀。
适用场景:
气动衬氟法兰蝶阀可适用于任何浓度的酸、碱、盐及氧化剂、还原剂、有机溶剂等介质,气动衬氟蝶阀是化工、石油、医药、食品、钢铁治炼、造纸、水电等系统的气体、液体、半流体的管路和容器上作截流和调节设备使用的理想产品。
| 气动衬氟法兰蝶阀 | 气动衬氟法兰蝶阀 |
| 名称 | 材质 |
|---|---|
| 阀体、底座 | 铸钢、不锈钢、全衬氟 |
| 蝶板 | 铸钢、不锈钢及特殊材料、全衬氟 |
| 密封圈 | 各种橡胶、聚四氟 |
| 衬里材料 | F46' F4、PFA、PO、PE' PP |
| 阀杆 | 20*13、不锈钢、全衬氟 |
| 填料 | V型聚四氟乙烯填料、柔性石墨填料 |
| 阀体形式 | 直通铸造蝶阀 |
|---|---|
| 公称通径 | DN50~DN500mm |
| 公称压力 | PN1.0. 1.6 MPa |
| 法兰标准 | JISB220、JB/T79、ANSIB16.5-1981、GBAT9113、HG20594-97、HG20618-97等 |
| 连接形式 | 法兰式、对夹式 |
| 阀盖形式 | 一体式 |
| 压盖型式 | 压盖压紧式 |
| 密封填料 | V型聚四氟乙烯填料、柔性石墨填料 |
| 阀板形式 | 垂直板式(蝶形) |
| 流量特性 | 等百分比、快开、线性 |
| 执行器型号 | GT系列、SR系列.AT系列、AW系列、TH(QGSY)系列单双作用气动执行器 |
| 供气压力 | 400700KPa |
| 气源接口 | Gl/4 Gl/8 G3/8V Gl/2" |
| 环境温度 | -30~+70oC |
| 作用形式 | 单作用执行机构:气关式(B)--失气时阀位开(FO):气开式(K)--失气时阀位关(FC) |
| 双作用执行机构:气关式(B)--失气时阀位保持(FL):气开式(K)--失气时阀位保持(FL) | |
| 可配附件 | 定位器、电磁阀、空气过滤减压器、保位阀.行程幵关、阀位传送器.手轮机构等 |
| 执行器型号 | GT、AT、AR、AW系列单双作用气动执行器 |
|---|---|
| 供气压力 | 0.4~0.7MPa |
| 气源接口 | G1/4"、G1/8"、G3/8"、G1/2" |
| 环境温度 | -30~+70℃ |
| 作用形式 | 单作用执行机构:气关式(B)--失气时阀位开(FO);气开式(K)--失气时阀位关(FC) |
| 公称通径DN(mm) | DN50~1200 | ||||
|---|---|---|---|---|---|
| 公称压力 | PN(MPa) | 0.6 | 1.0 | 1.6 | 2.5 |
| 试验压力 | 强度试验 | 0.9 | 1.5 | 2.4 | 3.75 |
| 密封试验 | 0.66 | 1.1 | 1.76 | 2.75 | |
| 低压气密试验 | 0.5~0.7 | ||||
| 适用介质 | 水、油(温度≤90℃)、蒸气、硝酸类(温度≤200℃)、醋酸类(温度≤200℃) | ||||
![]() |
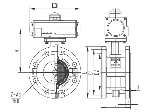
| 公称通径DN(mm) | 50 | 65 | 80 | 100 | 125 | 150 | 200 | 250 | 300 | 350 | 400 | 450 | 500 | 600 | 700 | 800 | 900 | 1000 |
|---|---|---|---|---|---|---|---|---|---|---|---|---|---|---|---|---|---|---|
| L(法兰式) | 108 | 112 | 114 | 127 | 140 | 140 | 152 | 165 | 178 | 190 | 216 | 222 | 229 | 267 | 292 | 318 | 330 | 410 |
| L(对夹式) | 43 | 46 | 46 | 52 | 56 | 56 | 60 | 68 | 78 | 78 | 102 | 114 | 127 | 154 | 165 | 190 | 203 | 216 |
| H 法兰式 | 70 | 83 | 105 | 115 | 137 | 164 | 206 | 230 | 248 | 289 | 320 | 343 | 413 | 478 | 525 | 585 | 640 | |
| H 对夹式 | 70 | 83 | 105 | 115 | 137 | 164 | 206 | 230 | 248 | 289 | 320 | 343 | 413 | 478 | 525 | 585 | 640 |
注:由于产品改进技术创新参数可能有一定变化,公司不另行通知,请咨询公司技术部门索取新数据。
下载:上海江控阀门有限公司-产品样本-气动衬氟法兰蝶阀.PDF
气动衬氟法兰蝶阀链接:https://jakon.cn/list_5/366.html